Boka visning
Välkommen att boka visning via formuläret, mail eller telefon!

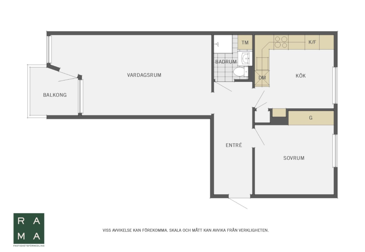
Grönbetesvägen 9, sommarlust
Nu finns chansen att förvärva denna välskötta och smakfulla tvårumslägenhet på Grönbetesvägen 9, belägen på tredje våningen i omtyckt förening!
Redan i hallen möts du av ett välkomnande intryck i den luftiga hallen med plats för avhängning. Lägenheten är mycket pedantiskt skött med fina ytskikt och en genomgående trivsam känsla. Köket är renoverat 2020 och håller en hög standard med stilrena materialval och goda arbetsytor.
Vardagsrummet är lättmöblerat och har ett fint ljusinsläpp som skapar en luftig atmosfär. Sovrummet erbjuder plats för dubbelsäng samt god förvaring. Badrummet är fräscht och funktionellt utformat.
Till bostaden hör förråd i källarplan, och i samma byggnad finns även tvättstuga, vilket gör vardagen smidig.
Sommarlust är ett populärt och lugnt område med närhet till förskola, grundskola, mataffär och restauranger. Goda bussförbindelser tar dig snabbt in till centrum på cirka 5 minuter.
Varmt välkommen att boka visning via mäklarens sida!
Bilder
Fakta och dokument
Fakta
Fakta om bostaden
Byggnad
Våning/hiss
Balkong, Uteplats & Bilplats
Energideklaration
Fakta om föreningen
.
2017 Spolning av vissa stammar LED belysning Plåtbeklädnad av skorstenar
2018 Fiberanslutning med nya ledningar via Telenor Installation av ecopilot
2019 Byte köksstam Grönbetesvägen 11 Status- och elsäkerhetskontroll Inköp tvättmaskin Underhållsspolning kök och badrum Tio nya cykelställ
2020 Målning underslag och källarfönster Sju nya parkeringar med laddmöjlighet Passersystem till entréer
2020 - Installation av porttelefoni. Spolning av samtliga stammar
2021 Vattenskada Oxhagsvägen 46 Hjärtstartare införskaffades och monterades i miljöhuset Radonmätning. Relining av köksstammar
2022 Trapphusrenovering Skyddsrumsrenovering påbörjad Laddstolpar 12 parkeringsplatser OVK Status- och elsäkerhetskontroll
2023 Skyddsrumsrenovering Elbidrag 146254 kr Nya stadgar Hållbarhetsbidrag erhållits
2024 Skyddsrumsrenovering slutbesiktigad Asfaltering och målning av parkeringar Grönbetesvägen Elbesiktning enligt Elsäkerhetsverkets regler, avvikelser åtgärdade Filmning av avloppsstammar. Robotgräsklippare. Underhållsbesiktning 14 mars.
Planerade åtgärder:
2025 Byten av ytterdörrar på innergården, 7 styck. Status- och elsäkerhetskontroll.
2026 Termostatventiler lägenheter Takskjutportar garage
2027 Balkongrenovering och fönsterbyte
2028 Målning träfönster. Målning smidesräcken
2029 Avstängningsventiler vatten. Rensning ventilation självdrag
Det finns även två besöksparkeringar. En är belägen på Grönbetesvägen och en vid Oxhagsvägen 46. Föreningens parkeringspolicy finns tillgänglig att ta del av genom styrelsen.























